
Settore: Oil & Gas – impianti onshore
Committente: Signorello S.r.l.
Cliente finale: IP
Localizzazione: Roma (PM)
Periodo attività: 2025
Servizi svolti:
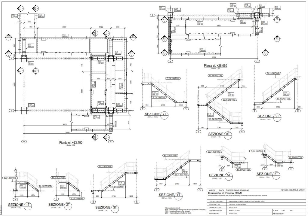
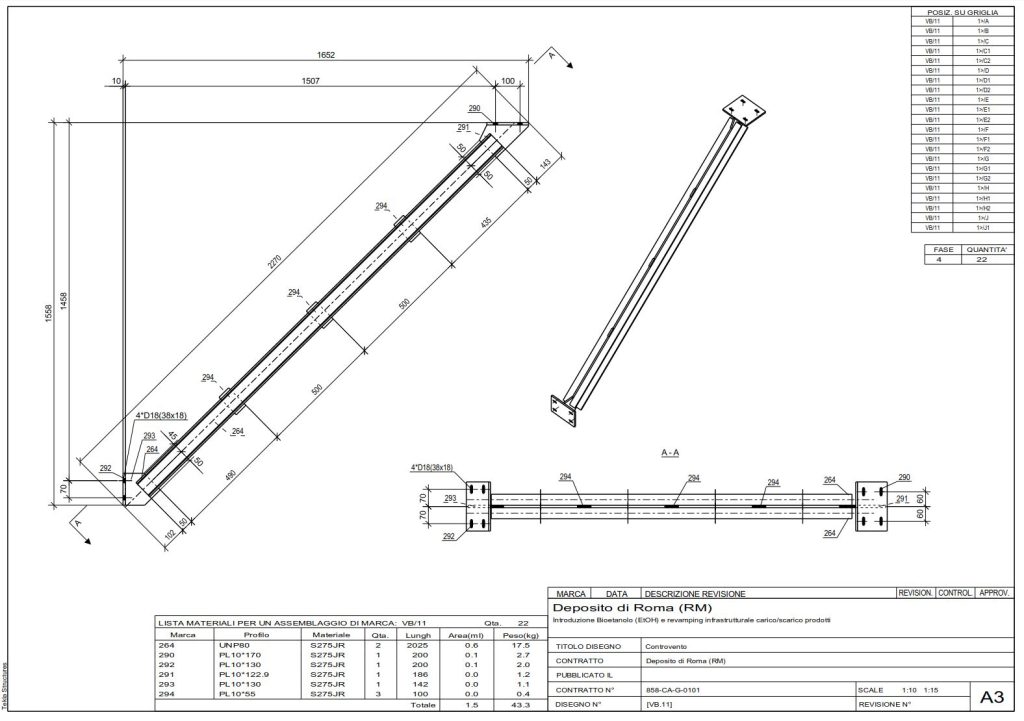
Per il Deposito IP di Roma (RM), nell’ambito del progetto di introduzione bioetanolo (EtOH) e revamping delle infrastrutture di carico/scarico, abbiamo svolto un’attività mirata di rimodellazione completa di una carpenteria metallica complessa finalizzata alla produzione di disegni di officina a supporto della ditta Signorello S.r.l.
In tempi serrati abbiamo ricostruito il modello e dettagliato la struttura per arrivare a elaborati esecutivi “da officina”: assiemi, particolari, forature, piastre, saldature, tolleranze, oltre a distinte materiali e riepiloghi utili a taglio e fabbricazione.
Il valore aggiunto è stato l’approccio “da progettisti”: durante la rimodellazione abbiamo evidenziato criticità e aspetti migliorabili (sequenza di montaggio, interferenze, accessibilità, coerenza dei dettagli), proponendo revisioni che hanno reso più lineare l’esecuzione e più rapido il montaggio in campo.





